

ひときわワイドな専有面積と、
多彩に使える90㎡超のルーフバルコニー、
すべての居室に陽光が射すゆとりと光の邸宅設計。
メインスペースとなるLDKも
約30.5帖のゆとりを実現しました。

LDKは約30.5帖。広い空間をモダンに演出する
おしゃれなアイランドキッチンを採用。
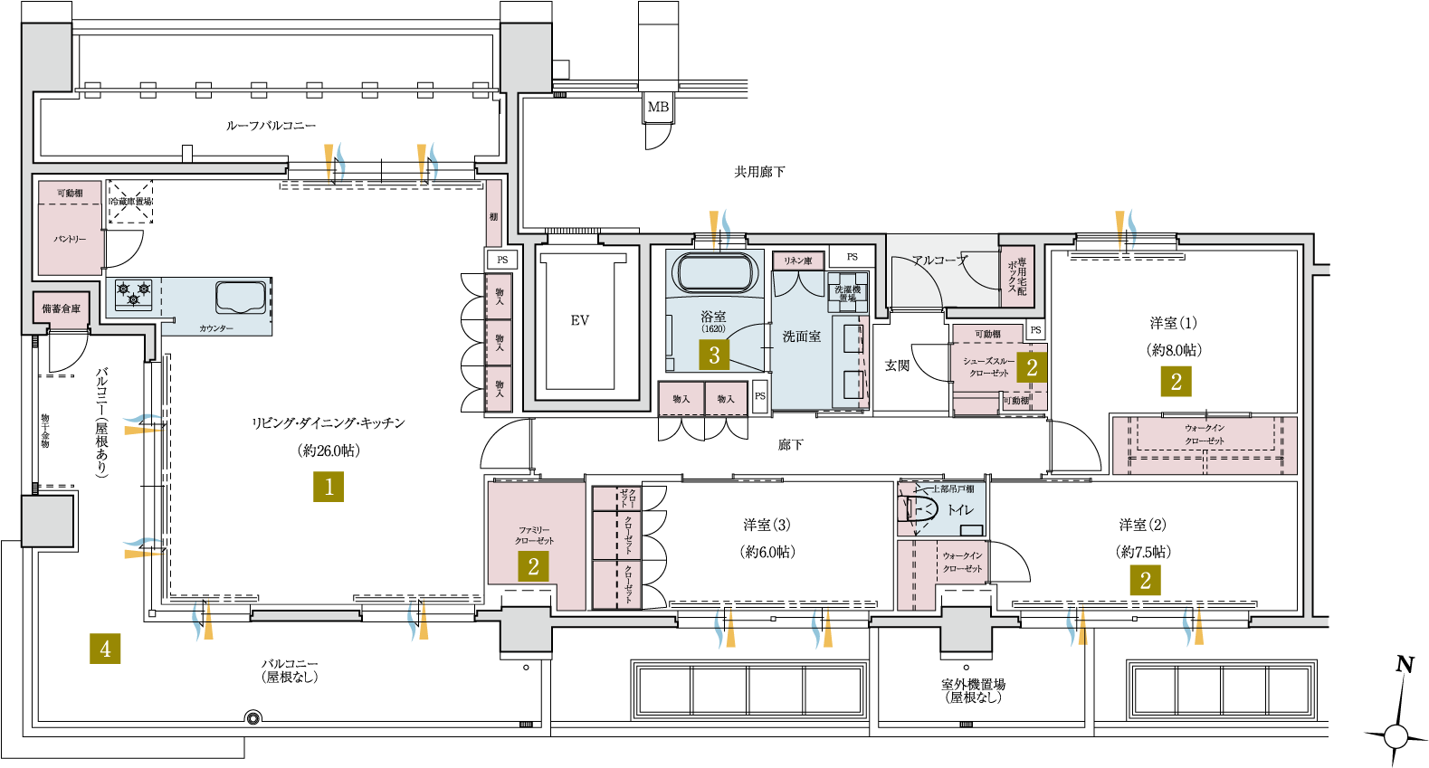
ウォークインクローゼットを洋室(1)(3)に。
玄関にはシューズインクローゼット、各室の収納も充分です。
窓のある1620サイズの広い浴室。
高い通風性をもたらすゆったりとした癒やしの空間です。
90㎡超のルーフバルコニーは、いわば天空の専用庭、
アイデア次第で多彩に使えます。

広い専有面積を活かし、
各居室にゆとりをもたせた贅沢な3LDK。
玄関シューズインクローゼットのほか、
2つのウォークインクローゼット、
さらにファミリークローゼットと、
ストレージ空間も邸宅仕様です。


WIC:ウォークインクローゼット
FC:ファミリークローゼット
STC:シューズインクローゼット
光あふれるLDKは約26.0帖。
可動棚付で使い勝手のいいワイドパントリーが便利です。
洋室(1)(2)にウォークインクローゼット、
玄関にはシューズインクローゼット、さらに廊下には大容量のファミリークローゼットを備えた収納充実プラン。
1620サイズの広い浴室には通風性を高める窓を設置。
ゆったりさわやかなリラックス空間です。
LDKを囲む2面バルコニーとルーフバルコニー。
自然の光と風をたっぷり採り込みます。

抜けるような青空、注ぐ陽射し、渡る風。
都心に居て満喫できる極上の眺望と開放感。
上空に遮るものがない最上階からの
パノラマビューもプレミアム。



最上階からの360度パノラマ撮影

~プレミアムプラン限定特別仕様~

砕石人造大理石天板 /
フィオレストーン
アイカオリジナルエンジニアドストーンの最高級ブランド「フィオレストーン」。天然水晶を主成分とした高級人造石。天然石の風合のままに、自然素材の欠点を克服しました。
浄水機能付タッチレス水栓
腕の負担を軽減&吐止水時の操作がスムーズなスパウト側面センサー。
スパウト側面にセンサーがあるから、手をかざした時にスパウトに水や洗剤が垂れにくく、水仕事の後に水栓を拭く手間も省けていつもきれいに保てます。
シンクの隅々までさっと洗い流せる。片手で引き出せるハンドシャワーは毎日の忙しい家事に欠かせない時短設備です。
手際良い家事の動作を妨げないように、手元で水形が切り替えられるダイヤル式を採用。センサー式だからといって複雑な操作方法を覚える必要はありません。
用途に応じて4つの水形が使い分けできます。気になる塩素を除去した浄水シャワーは、お野菜を洗う時、お米を研ぐ時など料理の下ごしらえに大活躍。テキパキと家事をこなす方はもちろん、料理好きの方に嬉しいポイントです。


トッププレート中央にLEDタイプの火力表示を配置。調理中も覗き込まずに火加減を調整できます。
グリル扉に採用したダイキャストハンドルが、すっきりとした印象と重厚感を両立。

※上記調理器具はいずれも別売となります。


ステンレスセンターマントルレンジフード(Iタイプのみ)
腕の負担を軽減&吐止水時の操作がスムーズなスパウト側面センサー。
ホーロー整流板は空気の流れを作り出し、煙を吸い込みやすくしてくれます。取り出しもラクラク。
コーナー部に隙間がなく、拭きやすい形状。

高級人造石天板フィオレストーン
2ボウル洗面化粧台
二人同時でもゆとりのある、ホテルライクな洗面化粧台。
傷に強く、美しさが続く高級人造石ならではの上質な輝き。
ボウル前の取り出しやすい場所にポケットタイプの収納を設けました。ヘアブラシやヘアピン、コットン、綿棒、マニキュアなどの化粧小物をスッキリ収納できます。


プレミアムプラン専用屋根付きカーポート
大型セダンやSUVも、ゆとりをもって迎え入れる屋根付きカーポート。
雨風や直射日光から大切な一台をしっかりと保護します。
邸宅のような安心感とワンランク上の駐車空間をお届けします
※引渡し時点の区画決定における優先権となり、将来にわたっての当該区画の利用を保証するものではございません。